Eladó családi ház Győrzámoly 71 900 000 Ft

Leírás

Nagyon jó helyen, csendes környéken új építésű családi ház Győrzámolyon.

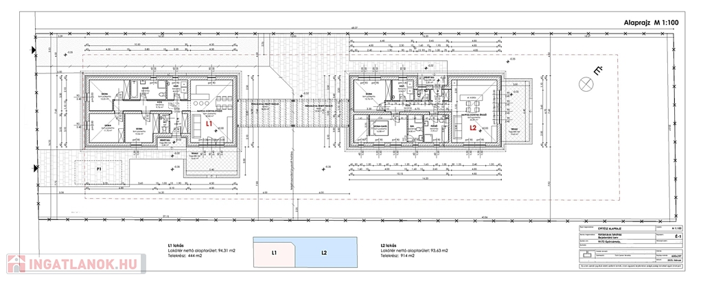
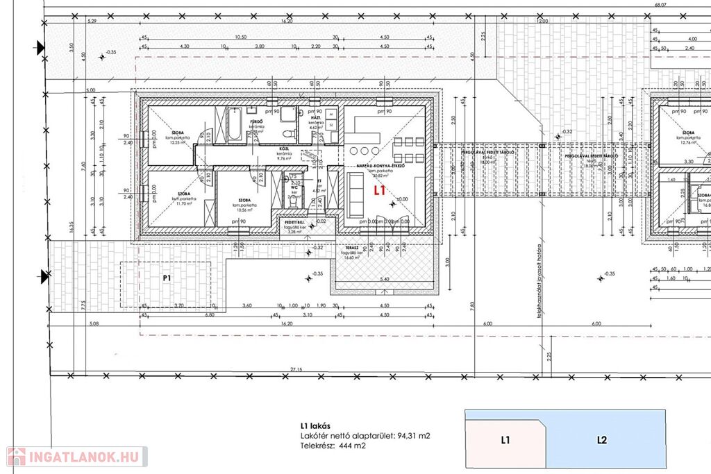
Győrzámoly csendes utcájában épülő ikerház 1. lakását kínálom Önnek.
A két épület egy 1358 m2-es telken épül fel. A házak pergolával fedett tárolókkal kapcsolódnak egymáshoz. Kerítéssel elválasztható a két telekrész.
Akár egy önálló családi ház!

A 444 m2 saját telekhányaddal rendelkező 94,31 m2-es ház helyiségei: amerikai konyhás nappali, 3 hálószoba, fürdőszoba+ WC, közlekedő, háztartási helyiség, külön WC és előszoba.
Az ingatlanhoz 16,6 m2 terasz és 3,28 m2-es fedett bejárat tartozik.
Az udvaron található még egy 18 m2-es pergoláva fedett tároló is.

Az ár emelt szintű fűtéskész állapotra vonatkozik 5% Áfával és tartalmazza a telekhányadot, 16 M Ft.
Megbízható kivitelező! Megtekinthető referencia házak.
Kulcsrakész befejezés egyedi ajánlat alapján kérhető!

Várható befejezés: 2025. év vége

Műszaki tartalom:
- Leier 30-as N+F tégla falazat, 10 cm tégla válaszfalak
- Gealan típusú, 3 rétegű üveggel ellátott fehér hőszigetelt ablakok, Igényes, hőszigetelt bejárati ajtó
- Baumit Star EPS hőszigetelő rendszer 15 cm homlokzati szigeteléssel
- padlószerkezetbe 10 cm lépésálló hőszigetelés kerül
- fafödém 30 cm Rockwool Multirock ásványgyapot hőszigeteléssel. ,
- Terran Synus tetőcserép
- kondenzációs gázkazán minden helyiségben padlófűtéssel
- horganyzott ereszcsatorna

Egyéni megbeszélés alapján értékegyeztetéssel még választható. ( Napelem, klíma, hőszivattyú, redőny....)

Ajánlom mindazoknak akik Győr vonzáskörzetének egyik kiemelkedően fejlődő településén, kellemes környezetben szeretnék élni életüket.
ILLETÉKMENTES!

CSOK, kamattámogatott hitelek igényelhetők. Díjmentes hitelügyintézés!

Hívjon gyorsan, mert már nagyon kevés hasonló projekt indul!
Várom hívását! 20/2777237

Családi ház részletei

Ár: 71 900 000 Ft
Méret: 94 négyzetméter
Azonosító: 11483010
Irodai azonosító: 116732
Cím: Győrzámoly
Telek: 444 négyzetméter
Ingatlan állapota: Átlagos
Jelleg: ikerház
Építőanyag: Kérdezzen rá a hirdetőtől »
Fűtés jellege: Cirkó
Kor: Új építésű
Egész szobák: 4

Egyéb jellemzők

  • Terasz