Eladó lakás Győr 54 900 000 Ft

Leírás

Győrszabadhegy frekventált részén, csendes, belső udvarra néző déli tájolású, tetőtéri lakás eladó!

BEFEKTETŐKNEK, EGYETEMISTÁKNAK, 1 lakást vásárlóknak is egyaránt kitűnő választás!

GYŐR-SZABADHEGY frekventált részén, 9 lakásos társasház 2. emeletén eladó egy tégla építésű, déli fekvésű, tágas, világos, tetőtéri lakás.
A ház 2016-ban épült, de a 3 tetőtéri lakás később került kialakításra és kapta meg a használatbavételi engedélyt.

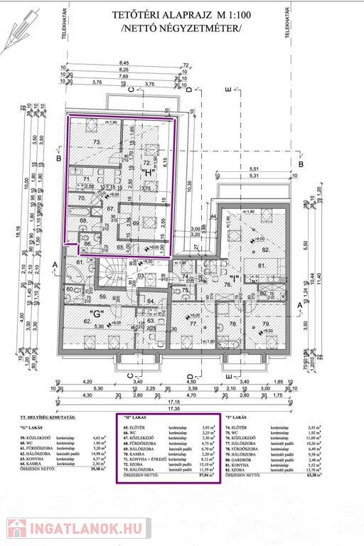
A kínált lakás 57,94 m2 nettó hasznos alapterületű.
Helyiségei: amerikai konyhás nappali, 2 hálószoba, fürdőszoba, háztartási helyiség WC-vel, közlekedő, kamra, tároló.

Műszaki tartalom:
- 30-as Leier N+F tégla főfalak
- 10 cm-es tégla válaszfalak, lakások között hanggátló fal
- 15 cm homlokzati szigetelés
- födémben 30 cm szigetelés párazáró fóliával
- VELUX fa tetőtéri ablakok kívül hővédő-, belül fényzáró rolóval
- FŰTÉS Saunier Duval kondenzációs gázkazánnal, hőleadás a teljes lakásban padlófűtés
- meleg víz gázkazán, átfolyós rendszerű
- modern KONYHABÚTOR háztartási gépekkel berendezve (elektromos sütő, főzőlap) megbeszélés alapján a hűtő is maradhat. Mosogatógép és páraelszívó beépíthető.
- Fürdőszobában kád és zuhanyzó is kialakításra került
- modern burkolatok. A szobákban laminált padló, a többi helyiségben járólap
- A lámpák is a vételár részét képezik

B energetikai tanúsítvány.

A közös költség 12.000.- Ft

A társasház elektromos kapun keresztül megközelíthető, zárt udvarral rendelkezik, ahol egy kocsibeállót kötelezően meg kell vásárolni. Ennek ára 2 M Ft.

Az ingatlan tömegközlekedéssel is könnyen megközelíthető. A közelben gyalogos távolságra elérhető: boltok, iskola, óvoda.

Amennyiben felkeltettem érdeklődését, kérem hívjon telefonon időpont egyeztetéshez.
Várom hívását! 20/2777237

Lakás részletei

Ár: 54 900 000 Ft
Méret: 58 négyzetméter
Azonosító: 11406547
Irodai azonosító: 112528
Cím: Győr
Emelet: 2. emelet
Építőanyag: Kérdezzen rá a hirdetőtől »
Fűtés jellege: Cirkó
Ingatlan állapota: Átlagos
Építési év: Új építésű
Egész szobák: 3

Egyéb jellemzők

  • Erkély